
O projeto de reforma do Hospital Regional de Vilhena (HRV) foi aprovado pela Agevisa (Agência Estadual de Vigilância em Saúde de Rondônia).
Avaliada em R$ 2,3 milhões oriundos de emendas parlamentares do ex-senador Valdir Raupp, a reforma fará ampla recuperação do sistema elétrico, dará mais conforto aos pacientes, reorganizará os setores e vai revitalizar alas chave do Regional, que tem estrutura antiga.
“O prédio do Hospital Regional é antigo e há muito tempo precisa de uma reforma. Estamos trabalhando incansavelmente para manter a qualidade e segurança no atendimento, ao mesmo tempo em que estamos investindo em uma grande obra: a construção de um novo prédio para o HRV, para a qual já temos uma emenda de vários milhões de reais da bancada federal. Juntas, essas duas ações, vão representar um avanço gigantesco na Saúde de Vilhena. Tenho prazer em tirá-las do papel, deixando esse legado para a cidade”, explica Japonês.
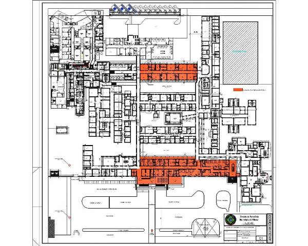
A reforma no Hospital vai abranger os setores de atendimento, ortopedia, salas vermelha e amarela, triagem, consultórios, setor administrativo e pronto-socorro, envolvendo uma grande área da unidade (ver mapa em anexo). De acordo com a Secretaria Municipal de Planejamento, o projeto vai permitir uma importante reorganização desses setores, além de executar uma ampla reforma elétrica de todo o prédio.
Serão feitos também reparos e substituições nos forros, no piso, nas paredes, no sistema hidráulico, na iluminação e outros aspectos destes setores.
E É PRA QUANDO?
O projeto, agora aprovado na Agevisa, segue para elaboração dos projetos de engenharia e planilhas orçamentárias. Após a aprovação da Caixa Econômica, a reforma estará pronta para ser licitada. Todas estas etapas deverão acontecer em, no máximo, seis meses.



